- Easy Building
- »
- Tipske montažne kuće
- »
- Montažna kuća Easy Style 2
Prepoznatljiv moderan dizajn
Montažna kuća Easy Style 2
Cena: 133.870 EUR bez PDV
Pošaljite upit ili pozovite 064/6405648 i dobićete tačnu ponudu prilagođenu vašim željama.
Montažna kuća model Easy Style 2 odlikuje savremen arhitektonski izraz koji mu daje prepoznatljiv vizuelni identitet. Estetika i funkcionalnost su pažljivo usklađeni i u potpunom balansu, kako bi se dobio moderan prostor za život.
Ukupna neto površina: 139,82 m²
Stambeni deo: 87,59 m²
Terasa: 13,20 m²
Garaža: 39,03 m²
Prostorije
Prizemlje
- Dnevna soba: 17,48 m²
- Trpezarija sa kuhinjom: 17,09 m²
- Hodnik i stepenište: 10,23 m²
- WC: 1,96 m²
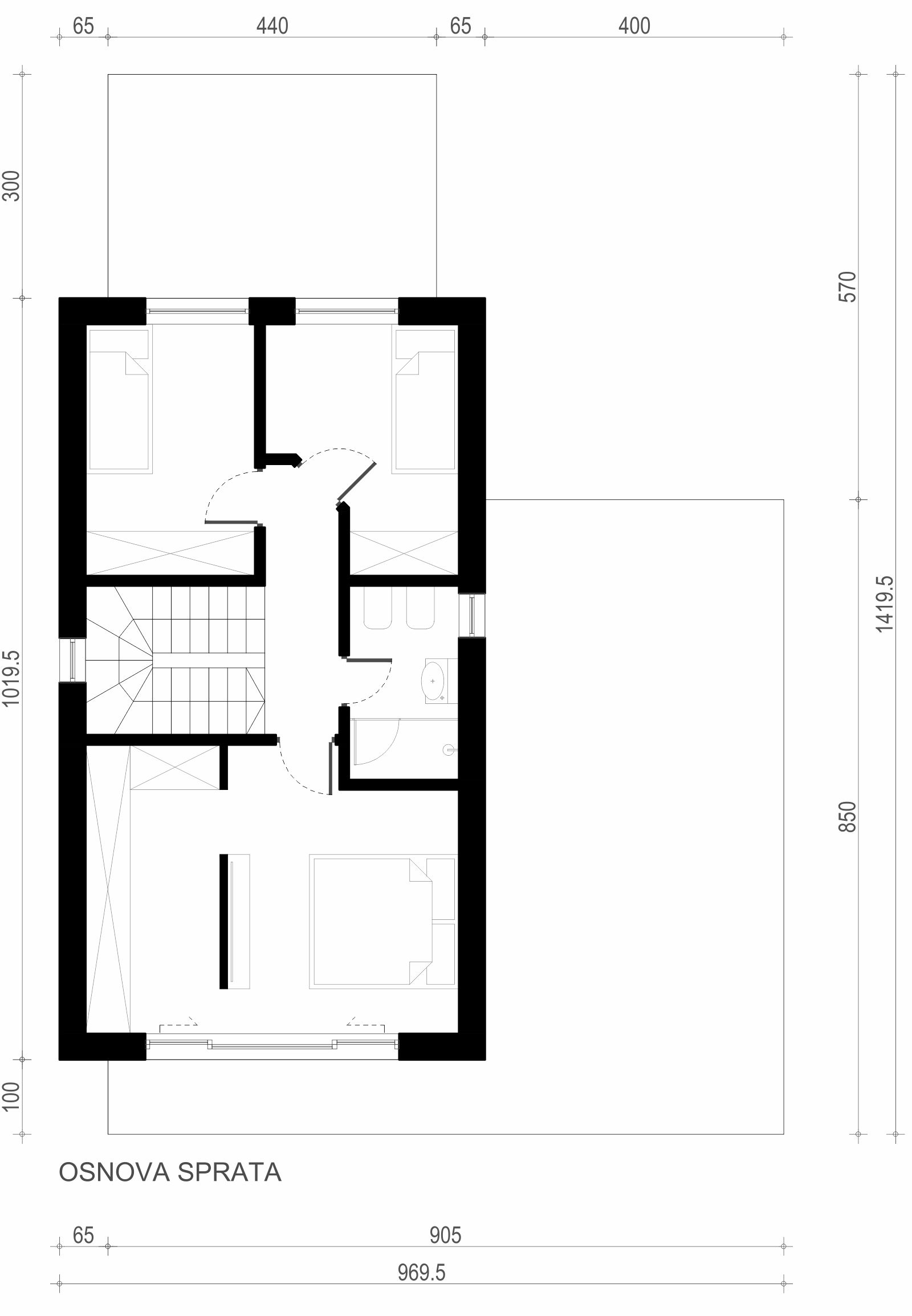
Sprat
- Dečja soba 1: 7,71 m²
- Dečja soba 2: 7,23 m²
- Kupatilo: 3,87 m²
- Master spavaća soba sa garderoberom: 18,39 m²
- Hodnik 3,63 m²


























