- Easy Building
- »
- Tipske montažne kuće
- »
- Montažna kuća Easy Style 5
Svetao i prozračan porodični dom
Montažna kuća Easy Style 5
Cena: 189.790 EUR bez PDV
Pošaljite upit ili pozovite 064/6405648 i dobićete tačnu ponudu prilagođenu vašim željama.
Montažna kuća Easy Style 5 je elegantan i funkcionalan dom kreiran za savremene potrebe porodice. Naglasak je na prozračnosti i prirodnom osvetljenju koje dodatno doprinosi prijatnom ambijentu. Kvalitet izrade obezbeđuje sigurnost i dug vek trajanja. Praktično rešenje koje spaja estetiku i komfor.
Ukupna neto površina: 209,42 m²
Stambeni deo: 128,67 m²
Terasa: 16,20 m²
Garaža: 64,55 m²
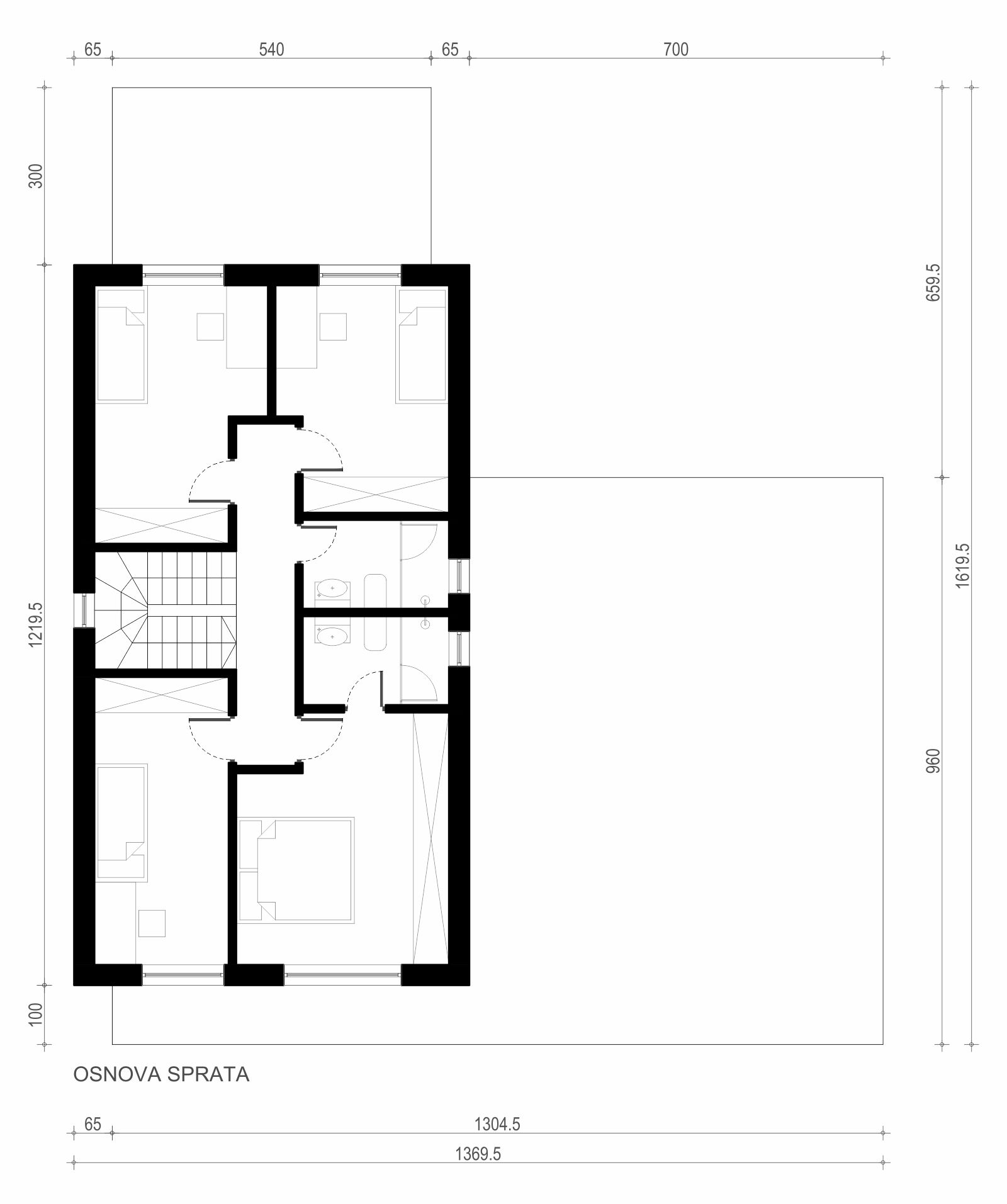
Prostorije
Prizemlje
- Dnevna soba: 26,40 m²
- Trpezarija sa kuhinjom: 19,80 m²
- Ostava: 3,32 m²
- WC: 3,03 m²
- Hodnik i stepenište: 15,14 m²
Sprat
- Dečja soba 1: 11,45 m²
- Dečja soba 2: 10,57 m²
- Dečja soba 3: 11,11 m²
- Kupatilo: 3,75 m²
- Master spavaća soba: 14,31 m²
- Master kupatilo: 3,75 m²
- Hodnik: 6,04 m²


























